 
     ●
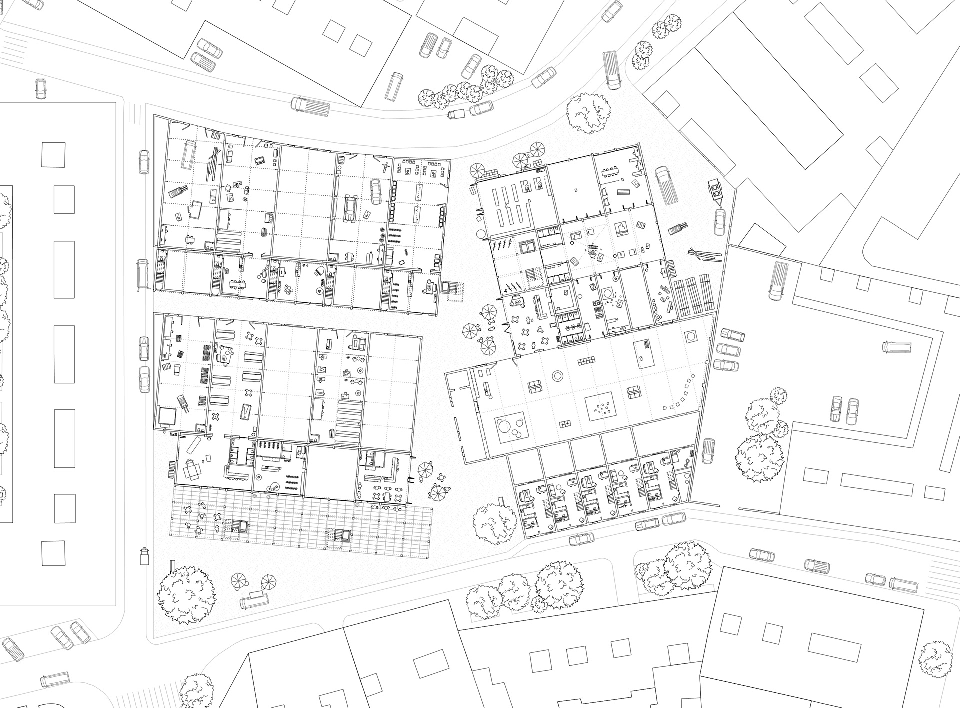
Triana, die Geburtsstädte des Flamencos, zeichnet sich durch seine heterogene Bebauungs- und Bevölkerungsstruktur aus. Kommerzielle Nutzungen  in den Erdgeschossen und Wohnungen in den Obergeschossen prägen das Bild. Das bestehende Konglomerat aus Gewerbehallen unterschiedlicher Grösse auf dem Bauplatz bildet eine Ausnahme in diesem System.
Mit dem Ansatz des Weiterbauens bleiben die charakteristischen Qualitäten einer Produktionsstätte erhalten. Die flexible Struktur des Bestandes wird fortgeführt und mit drei Bauvolumen ergänzt. Die bestehenden Hallen kombiniert mit den neuen Gebäuden bilden eine durchlässige Struktur mit unterschiedlich dimensionierten Nutzungseinheiten, die Platz für Altes und Neues bieten.
Eine Sequenz von polygonalen Plätzen knüpft das Gewerbe im nördlichen Teil der Parzelle an den öffentlichen Platz im Süden. Dieses charakteristische Verbindungselement stellt das gemeinschaftliche Zentrum des Quartiers dar. Die Vielzahl an Werkstätten, ein Ausstellungs- und Veranstaltungsraum, sowie Verkaufs- und Gastronomieflächen in den Erdgeschossen sorgen für Offenheit. Diese Funktionen sind nicht streng getrennt, sondern greifen ineinander und profitieren gegenseitig.
Die Nähe zwischen Wohnen, Produktion und Öffentlichkeit und die Spannungen zwischen diesen Programmen führten dazu, konventionelle Arten des Wohnens zu hinterfragen und stattdessen drei unterschiedliche, gemeinschaftsorientierte Wohnkonzepte zu erarbeiten.
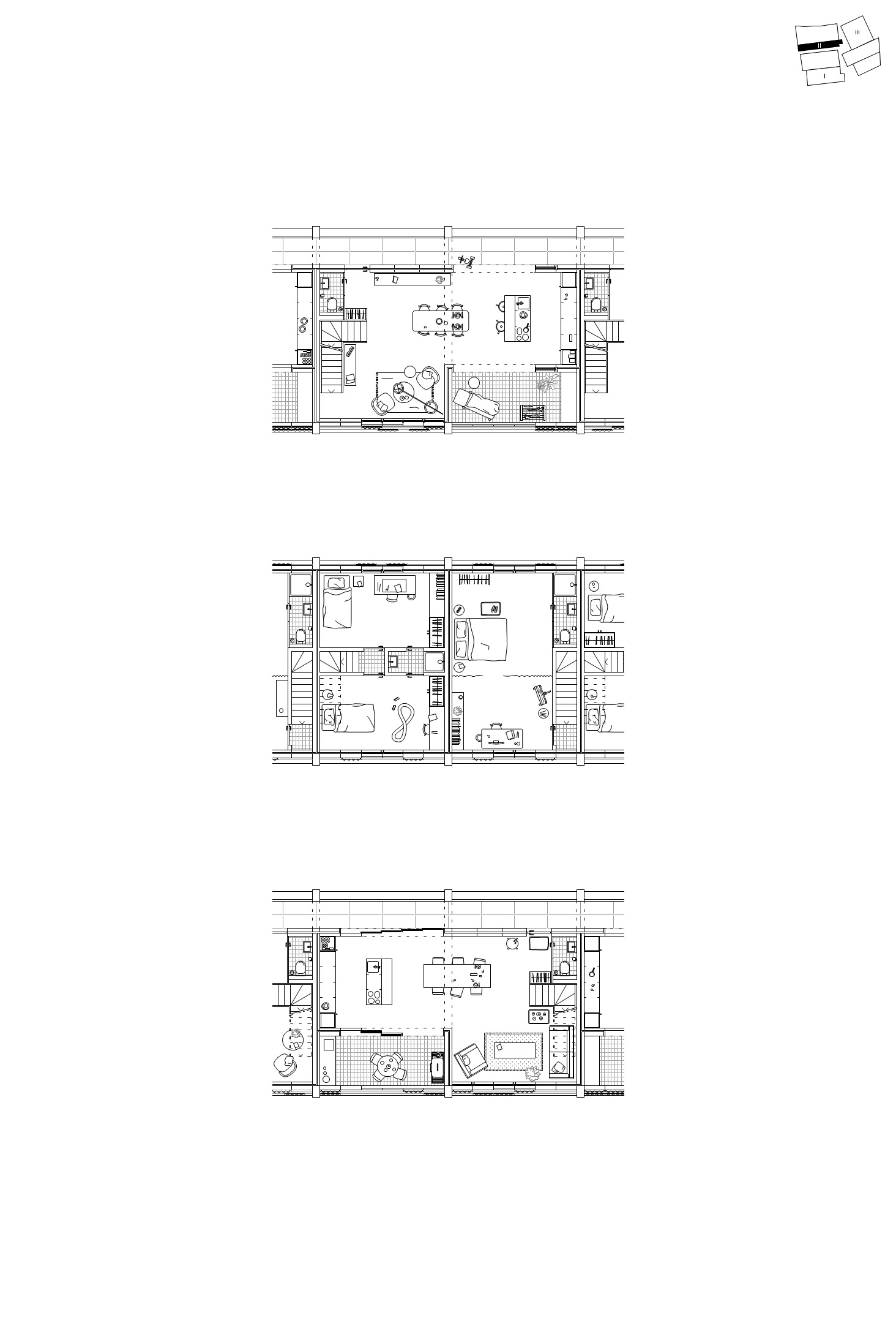
Der Block (Haus III) ist ein Hybrid mit Fokus auf Synergien zwischen Wohnen und Arbeiten. In dem massigen Volumen gruppieren sich kleinste Wohneinheiten zellartig um ein gemeinschaftliches Atrium.
In der Scheibe (Haus II) zwischen den bestehenden Hallengruppen befinden sich ineinander verzahnte, mehrgeschossige Wohnungen.
Das Bauvolumen des Riegels (Haus I) ist zweigeteilt. Doppelgeschossige Kompaktwohnungen werden mit einem vorgelagerten, überhohen Gemeinschaftsbereich, dem «Stadtbalkon», ergänzt.
Die ausgefachte Betonskelettkonstruktion mit den farbigen Wellblech-Beschattungselementen ist eine Reminiszenz an das industrielle Erbe der Gewerbehallen.
Mit dem Ansatz des Weiterbauens bleiben die charakteristischen Qualitäten einer Produktionsstätte erhalten. Die flexible Struktur des Bestandes wird fortgeführt und mit drei Bauvolumen ergänzt. Die bestehenden Hallen kombiniert mit den neuen Gebäuden bilden eine durchlässige Struktur mit unterschiedlich dimensionierten Nutzungseinheiten, die Platz für Altes und Neues bieten.
Eine Sequenz von polygonalen Plätzen knüpft das Gewerbe im nördlichen Teil der Parzelle an den öffentlichen Platz im Süden. Dieses charakteristische Verbindungselement stellt das gemeinschaftliche Zentrum des Quartiers dar. Die Vielzahl an Werkstätten, ein Ausstellungs- und Veranstaltungsraum, sowie Verkaufs- und Gastronomieflächen in den Erdgeschossen sorgen für Offenheit. Diese Funktionen sind nicht streng getrennt, sondern greifen ineinander und profitieren gegenseitig.
Die Nähe zwischen Wohnen, Produktion und Öffentlichkeit und die Spannungen zwischen diesen Programmen führten dazu, konventionelle Arten des Wohnens zu hinterfragen und stattdessen drei unterschiedliche, gemeinschaftsorientierte Wohnkonzepte zu erarbeiten.
Der Block (Haus III) ist ein Hybrid mit Fokus auf Synergien zwischen Wohnen und Arbeiten. In dem massigen Volumen gruppieren sich kleinste Wohneinheiten zellartig um ein gemeinschaftliches Atrium.
In der Scheibe (Haus II) zwischen den bestehenden Hallengruppen befinden sich ineinander verzahnte, mehrgeschossige Wohnungen.
Das Bauvolumen des Riegels (Haus I) ist zweigeteilt. Doppelgeschossige Kompaktwohnungen werden mit einem vorgelagerten, überhohen Gemeinschaftsbereich, dem «Stadtbalkon», ergänzt.
Die ausgefachte Betonskelettkonstruktion mit den farbigen Wellblech-Beschattungselementen ist eine Reminiszenz an das industrielle Erbe der Gewerbehallen.
Calle Tejares 11-13, Sevilla
Spanien, N37°23'13. W26°00'32.5
Hochschule Luzern, Studio Angelika Juppien
Spanien, N37°23'13. W26°00'32.5
Hochschule Luzern, Studio Angelika Juppien
4. Semester, Frühling 2018
Verfasser: Bela Zwygart, Tobias Lutz
 
      
     