●
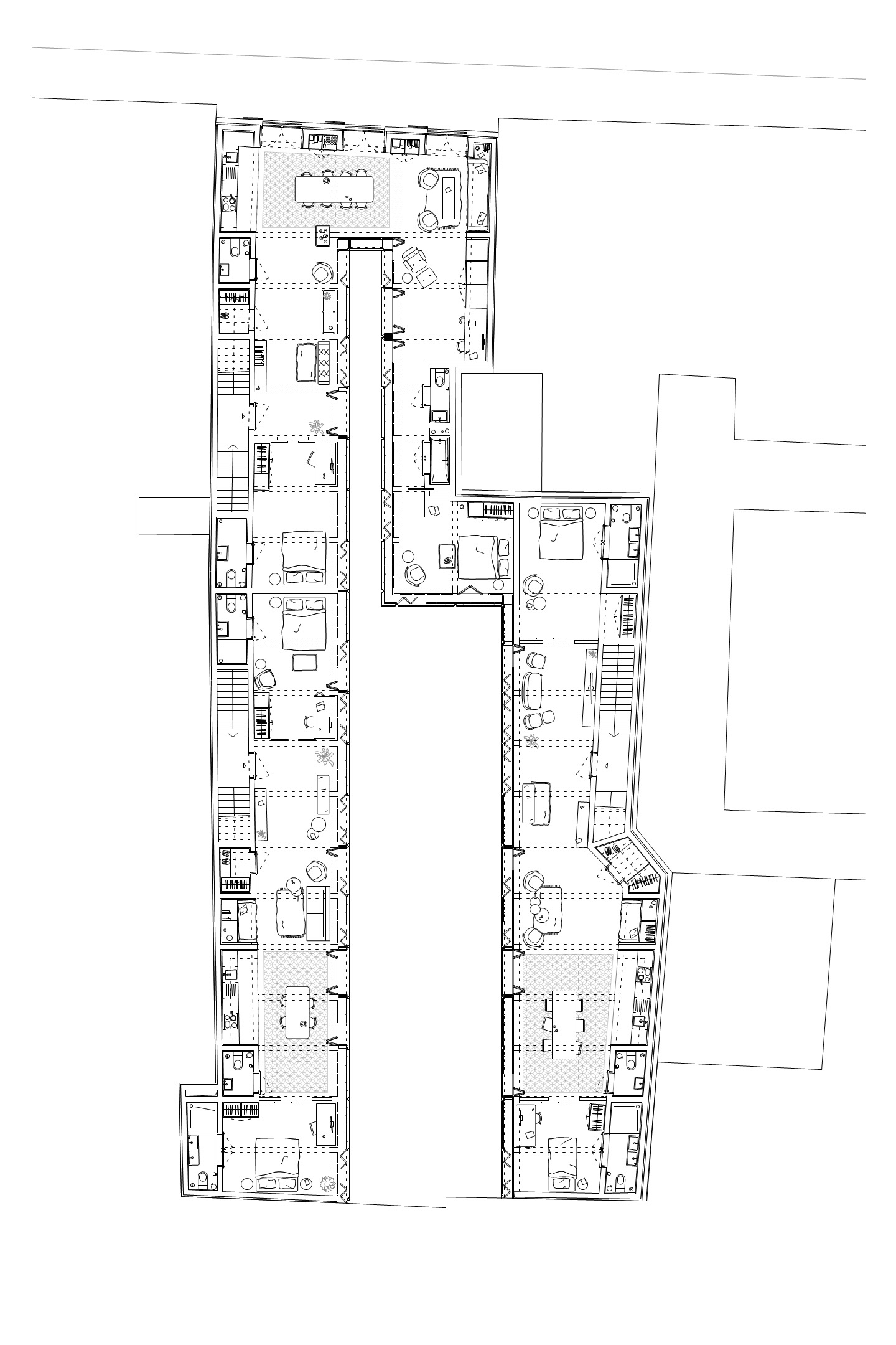
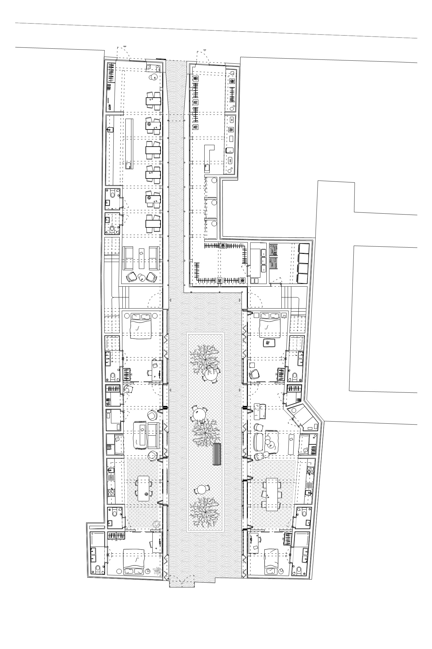
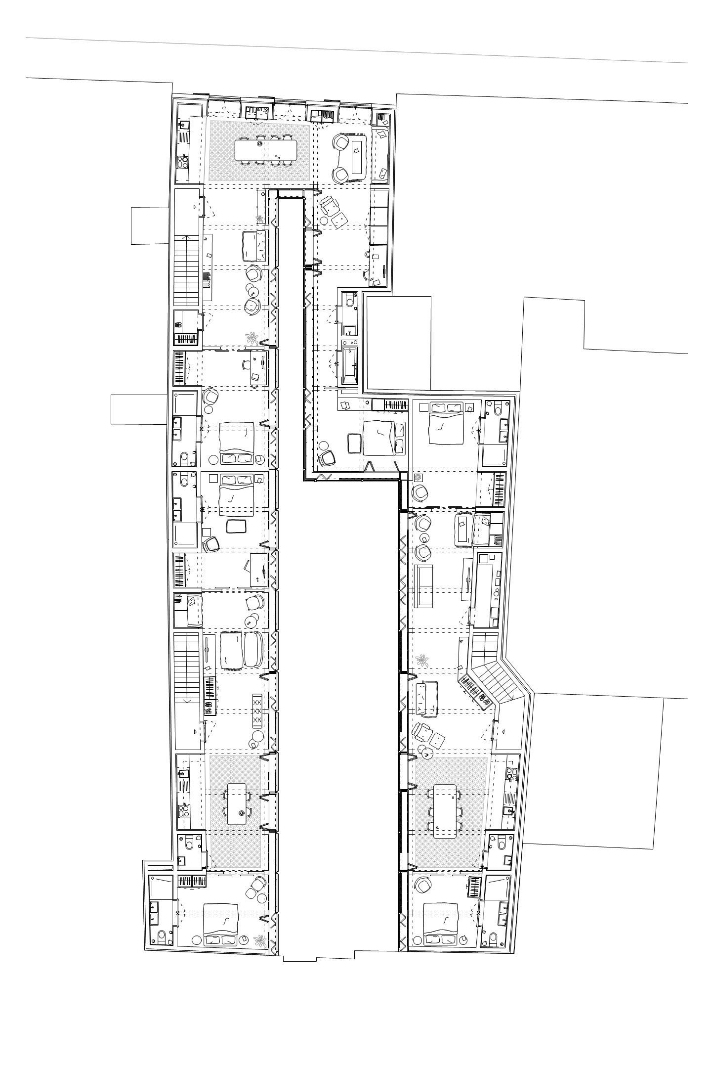
Die Altstadt von Sevilla ist konglomerater städtischer Raum. Die zusammenhängende Baumasse bildet einen Gebäudeteppich, der nur an einzelnen Stellen kleine, unförmige
Risse aufweist. Einer davon ist die Baulücke an der Calle Goles, welche 40m tief in das Stadtgewebe dringt und zur Strasse hin schmal abschliesst. Die Parzelle liegt in direkter Nachbarschaft einer Kirche mit ehemaligem Kloster, das heute eine Schauspielschule beherbergt.
Die Gebäudetypologie des Neubaus orientiert sich an den «Corrales de vecinos», einer in Sevilla traditionell zur Verdichtung von Hinterhöfen konzipierten Typologie mit zentralem Innenhof. Dieses baukulturelle Erinnerungsstück, angepasst an Vorstellungen des zeitgenössischen Wohnens, ergibt einen neuartigen Wohntypus, dem der Gemeinschaftsgedanke seines Vorbildes erhalten bleibt.
Der Baukörper führt als raumhaltige, bewohnbare Einfriedung entlang der Parzellengrenze und separiert so einen langgestreckten Hof von der Strasse. Der Entwurf passt sich stadtmorphologisch den Häusern rund um die Kirche an, welche jeweils U-förmig an deren Hauptschiff angebaut wurden. Das dreigeschossige Bauvolumen bietet im Erdgeschoss strassenseitig Platz für gewerbliche Nutzungen. Ein schmaler Durchgang führt in den gemeinschaftlichen Innenhof. An den Hof stossen, über die drei Geschosse verteilt, insgesamt acht Wohneinheiten.
Entlang der Brandmauern umschliesst eine "dienende Schicht" aus Sichtbeton die Wohnungen. Darin sind die Erschliessung in Form einer Kaskadentreppe, sowie Sanitärräume und multifunktionale Nischen untergebracht.
Als Bühne für unterschiedlichste Wohnvorstellungen spannen sich die freigespielten Haupträume zwischen der raumhaltigen Wand und dem Hof auf. Zoniert wird die aussergewöhnliche Länge des Raumes einzig durch die Verbindungen zur dienenden Schicht. Lediglich eine feingliedrige Fassadenkonstruktion, welche die Lichtstimmung in den Räumen reguliert, trennt das Innen vom Aussen.
Risse aufweist. Einer davon ist die Baulücke an der Calle Goles, welche 40m tief in das Stadtgewebe dringt und zur Strasse hin schmal abschliesst. Die Parzelle liegt in direkter Nachbarschaft einer Kirche mit ehemaligem Kloster, das heute eine Schauspielschule beherbergt.
Die Gebäudetypologie des Neubaus orientiert sich an den «Corrales de vecinos», einer in Sevilla traditionell zur Verdichtung von Hinterhöfen konzipierten Typologie mit zentralem Innenhof. Dieses baukulturelle Erinnerungsstück, angepasst an Vorstellungen des zeitgenössischen Wohnens, ergibt einen neuartigen Wohntypus, dem der Gemeinschaftsgedanke seines Vorbildes erhalten bleibt.
Der Baukörper führt als raumhaltige, bewohnbare Einfriedung entlang der Parzellengrenze und separiert so einen langgestreckten Hof von der Strasse. Der Entwurf passt sich stadtmorphologisch den Häusern rund um die Kirche an, welche jeweils U-förmig an deren Hauptschiff angebaut wurden. Das dreigeschossige Bauvolumen bietet im Erdgeschoss strassenseitig Platz für gewerbliche Nutzungen. Ein schmaler Durchgang führt in den gemeinschaftlichen Innenhof. An den Hof stossen, über die drei Geschosse verteilt, insgesamt acht Wohneinheiten.
Entlang der Brandmauern umschliesst eine "dienende Schicht" aus Sichtbeton die Wohnungen. Darin sind die Erschliessung in Form einer Kaskadentreppe, sowie Sanitärräume und multifunktionale Nischen untergebracht.
Als Bühne für unterschiedlichste Wohnvorstellungen spannen sich die freigespielten Haupträume zwischen der raumhaltigen Wand und dem Hof auf. Zoniert wird die aussergewöhnliche Länge des Raumes einzig durch die Verbindungen zur dienenden Schicht. Lediglich eine feingliedrige Fassadenkonstruktion, welche die Lichtstimmung in den Räumen reguliert, trennt das Innen vom Aussen.
Calle Goles 46, Sevilla
Spanien, N37°23'44.9 W6°00'03.1
Hochschule Luzern, Studio Matei Manaila
Spanien, N37°23'44.9 W6°00'03.1
Hochschule Luzern, Studio Matei Manaila
3. Semester, Herbst 2017
Verfasser: Bela Zwygart